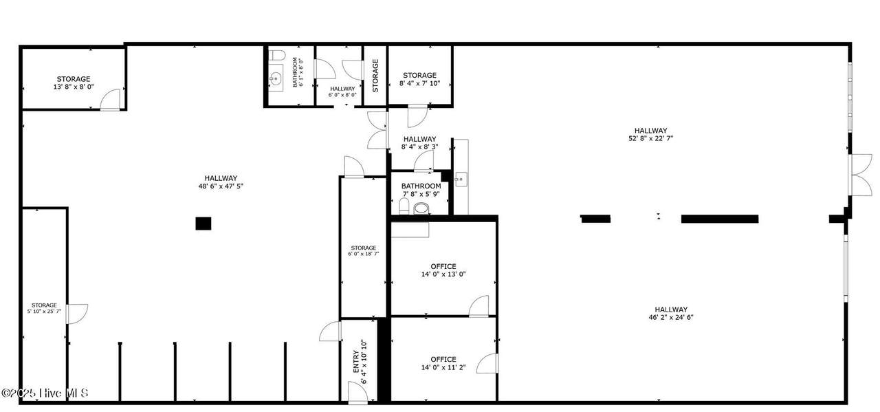
Description
Previously used as a Barber Shop. 6000 square feet sitting on Lejeune BLVD. Boasting a NCDOT daily traffic count of 35,000-54,999. Check out the schematic and the VIRTUAL TOUR to see if the property would fit your business's needs.
-
0BEDS
-
0.28ACRES
-
0BATHS
-
01/2 BATHS
School Ratings & Info
Description
Previously used as a Barber Shop. 6000 square feet sitting on Lejeune BLVD. Boasting a NCDOT daily traffic count of 35,000-54,999. Check out the schematic and the VIRTUAL TOUR to see if the property would fit your business's needs.
© 2025 NCRMLS. All rights reserved. North Carolina Regional Multiple Listing Service, (NCRMLS), provides content displayed here (“provided content”) on an “as is” basis and makes no representations or warranties regarding the provided content, including, but not limited to those of non-infringement, timeliness, accuracy, or completeness. Individuals and companies using information presented are responsible for verification and validation of information they utilize and present to their customers and clients. NCRMLS will not be liable for any damage or loss resulting from use of the provided content or the products available through Portals, IDX, VOW, and/or Syndication. Recipients of this information shall not resell, redistribute, reproduce, modify, or otherwise copy any portion thereof without the expressed written consent of NCRMLS. Data last updated 2025-11-07T12:36:24.31.